fbpx

Asking Price $410,000

Build Plans In Place – Reserved-Backed Section!

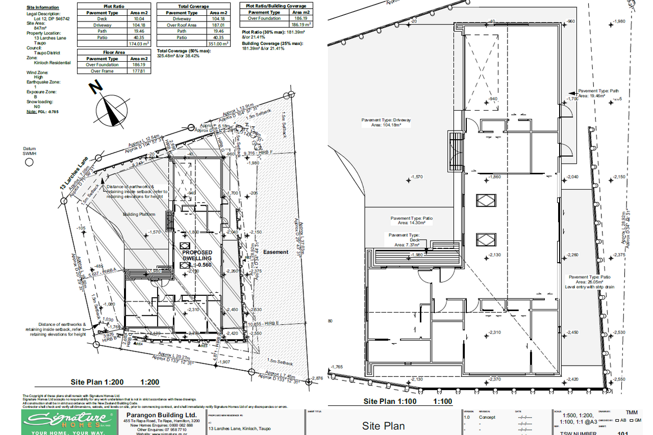
13 Larches Lane, Kinloch Taupo
Nestled in a private cul-de-sac, this generous 847sqm section offers peace, privacy, and a stunning backdrop of reserve land. A rare opportunity in sought-after Kinloch, this site is ready for you to bring your dream home to life.

Why you’ll love it:

• Premium reserve outlook – no rear neighbours, just greenery.
• Private cul-de-sac location, perfect for families or holiday escapes.
• Plans already in place with Signature Homes – a stunning 2/3 bedroom, 2 ensuite design with open living, double garage, and modern styling.
• Build site with services ready.
• Vendors have had a change of plans – their opportunity is now yours.

Only moments from Lake Taupō, Kinloch is the ultimate summer playground, think boating, swimming, fishing, and world-class biking and walking tracks. A tight-knit community vibe with that holiday feel all year round.

Get in quick! Build your forever home or create the perfect holiday retreat in one of the region’s most desirable locations.

Call Kim today to secure this unique opportunity, there are more plans available upon request, this property is ready to go!

Proudly Presented By

    Want more information on this property?